02-Feb-2026

black desert North lot #9

            4-way            

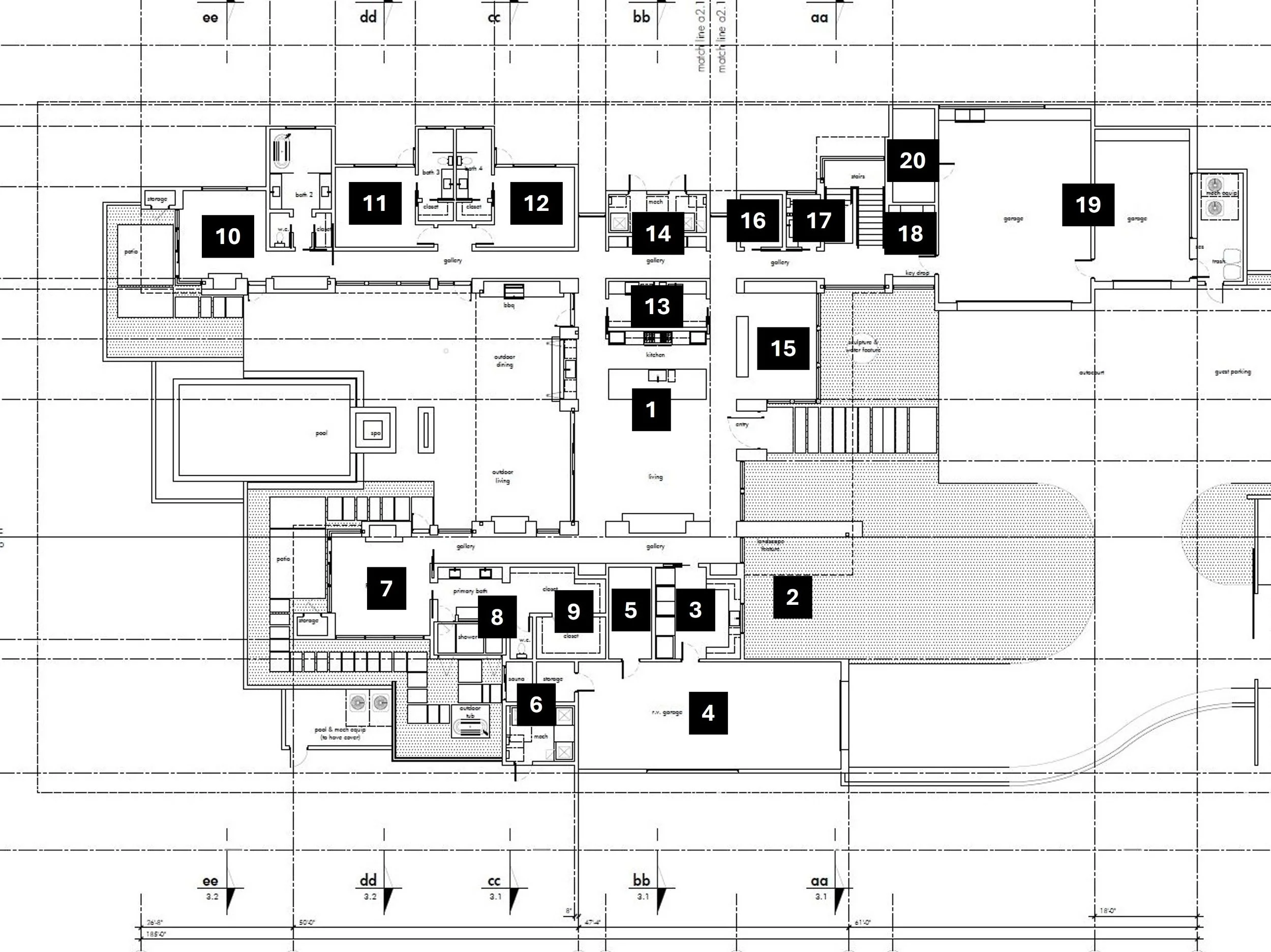
Main Floor

360 VIDEO WALK THROUGH

Click and drag your mouse button to look around during the video.

MOBILE DEVICE INSTRUCTIONS

1: Download YouTube App

2: Click Link

PART 1

https://www.youtube.com/watch?v=OPf5xDrLMNM

PART 2

https://www.youtube.com/watch?v=kF63lGh9wcM

Video Time Stamps

PART 1

#1 0:02 #6 2:25

#2 1:00 #7 3:30

#3 1:20 #8 4:00

#4 1:33 #9 4:39

#5 2:09

PART 2

#10 0:30 #16 4:53

#11 2:00 #17 5:10

#12 2:45 #18 5:35

#13 3:33 #19 5:46

#14 3:50 #20 6:30

#15 4:30

Main Floor Photo Guide

Upstairs

360 VIDEO WALK THROUGH

Click and drag your mouse button to look around during the video.

MOBILE DEVICE INSTRUCTIONS

1: Download YouTube App

2: Click Link

https://www.youtube.com/watch?v=aESPiorY60k

Video Time Stamps

#1 0:28

#2 0:35

#3 1:12

upstairs Photo Guide